對于很多初次接觸餐廳及食堂建設的業主方來說,針對新建的餐廳或食堂確認需求制定設備采購計劃相對容易,但是根據硬件情況制定出合理的廚房整體解決方案確比較困難,建議餐廳或食堂業主在選擇廚房設備公司時多對比報價和設計方案,尋求出最合理而實用的廚房整體解決方案。
現在大明廚具跟大家分享一個80人左右的職工食堂廚房設備配置方案;希望對那些有需求的業主有所參考!

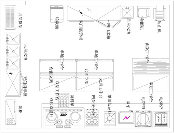
職工食堂廚房設計圖



建設一個好用的餐廳或食堂,建設前要首先明確以下幾個方面:
1、確認自己的需求。根據實際情況,確認自己的需求情況,如菜品如何定位(中、高、低檔)?就餐人數有多少?菜品結構的選擇(中、西餐,菜系)?什么樣的 就餐形式(點餐或自助)等等。根據實際需求,就可以配備相應的廚房設備及餐飲用具,高效、精準的制定采購計劃,避免資金的浪費。
2、仔細研究現有餐廳或食堂的硬件狀況,如廚房所在樓層結構、高度、排煙管道、下水管線、樓層的核載、排送風路由、結構對功能間的影響等等。了解這些情 況,根據實際狀況制定廚房整體解決方案,既保證了餐廳或食堂的正常運轉,又符合國家在油煙排放、噪音治理、衛生防疫等方面的經營標準。
3、尋找有資質、有經驗的廚房設備公司就是第三步了。向廚房設備公司提供詳細準確的建筑結構平面圖及設備配置需求等資料,提出安裝施工及時間進度要求,有效地監督施工過程,確保施工質量。

蓄熱式遠紅外線節能爐具
雙眼矮湯爐(鼓風)
鏈傳式洗碗機
小分子活性水開水器